株式会社日本製衡所(未来をはかるコーディネーターニッコー)
メニュー


「トラックスケール ダスト防止T型ゴム」とは、ピット式トラックスケールの隙間から侵入する砂利・泥・ゴミを防ぐ専用ゴムです。
本来ピット式トラックスケールは、構造上ピット内に砂利・泥・ゴミが蓄積するため、こまめな清掃作業行っていただく必要があります。
しかし、この「トラックスケール ダスト防止T型ゴム」を使用していただくとピット内へのダストの侵入を防ぎ日々の清掃業務を大幅に軽減できます。
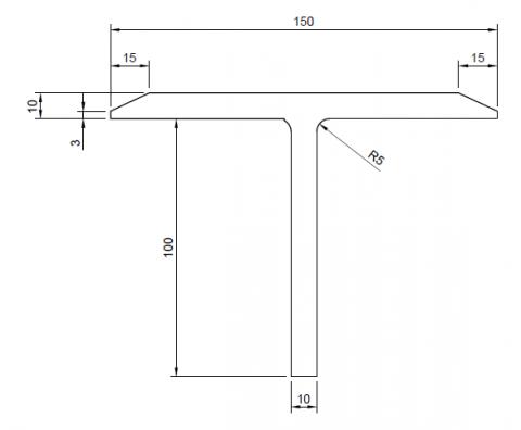
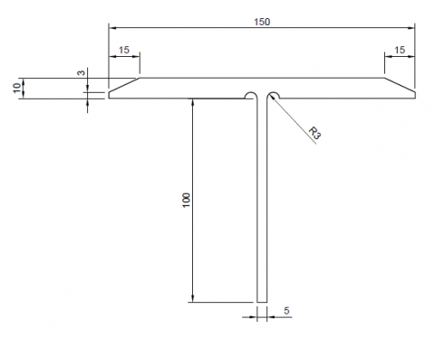
イメージ図


実際の写真

実際の写真
トラックスケールは、ロードセルで荷重を電気信号に変換し、最終的に重量値として出力します。ピッド内に泥などのダストが堆積すると、ピット(基礎)とトラックスケール内で突っ張り棒のような役割を果たし、正確な荷重を検知できなくなります。その結果荷重がロードセルに正しく伝わらなくなり正確な重量値が出力されなくなってしまいます。そのため、ピット内にダストが蓄積する前にピット内の清掃が必要となります。
ピット内のダスト排出にはピットの内部に人が入り排出作業を行う必要があります。ピット内は非常に狭く作業が行いにくいので排出作業による身体的負担は計り知れません。当社にご依頼いただくことも可能ですが、日々の清掃活動を行なっていない場合状況に応じて重機が必要となる場合もあり費用が高額になることも珍しくありません。
そこで、隙間からの異物侵入を防ぐ「トラックスケール ダスト防止T型ゴム」を設置することで、ピット内にダスト入り込むのを最小限にし、清潔な環境を維持します。これにより、トラックスケールの機能を損なうことなくピット内ピット内清掃費用の軽減や、日々の清掃業務の軽減に貢献いたします。
ピットとトラックスケールの隙間に、この「トラックスケール ダスト防止T型ゴム」をはめ込むだけで、トラックスケールの隙間からダスト(砂や泥など)がピット内に入り込むのを防ぎ、清潔な環境を維持します。これにより、トラックスケールの機能を損なうことなくピット内清掃の手間を軽減し、日々の省人化に貢献いたします。
複雑な工具や特別な技術は不要。ゴムをトラックスケールの隙間に差し込むだけで、ピットとトラックスケールの隙間にしっかりフィットしダストの侵入を防ぎます。

